A private house in Rudloe

A private house in Rudloe

Extensions

About this project

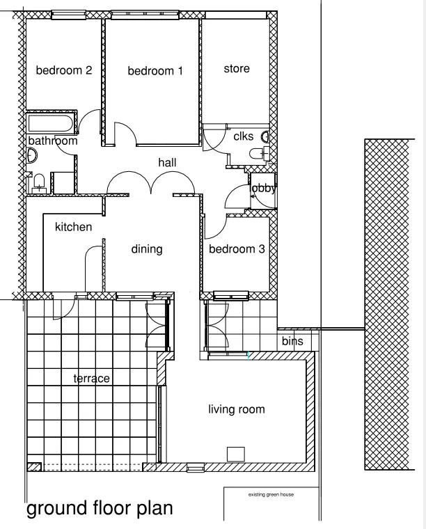
A detached living room has been provided. It is attached to the house with a glass link so that the existing rooms do not lose their windows. The extension, together with the boundary fence, creates a paved courtyard. The garden is framed from the courtyard with a timber beam.